Casale con due unità abitative alle porte di Udine sud
- €650.000
Casale con due unità abitative alle porte di Udine sud
- €650.000
Panoramica
- 6
- 6
- 450 Mq
- 2006
- Garage doppio
Descrizione
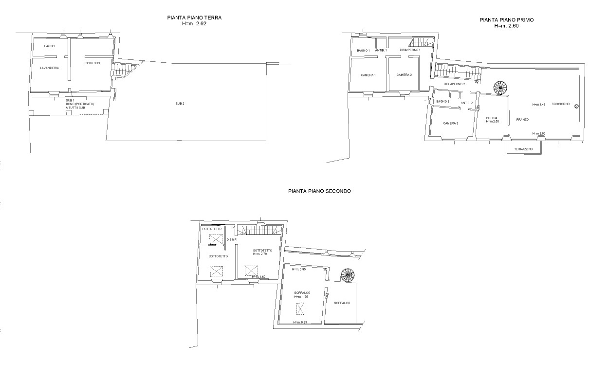
Cussignacco – A pochi passi dalla piazza proponiamo in vendita un affascinante casale sapientemente ristrutturato nel 2006, dal quale sono state realizzate due unità abitative con relative pertinenze e giardino.
Il primo appartamento, un tricamere biservizi di mq. 130, si sviluppa al piano terra.
Il secondo appartamento, di mq. 300, regala grandi emozioni! Dal piano terra si accede ad un ampio ingresso con vestiere e zona lavanderia, una scala in pietra ci porta al piano superiore dove troviamo la cucina ed il soggiorno, vero pezzo forte del casale! Ampio, caloroso, pieno di luce… Nella zona notte vi sono la camera padronale con proprio bagno, due camere doppie e un ulteriore bagno. Al secondo piano, infine, la zona ospiti con uno studio, una camera mansardata ed un bagno.
Completa la proprietà un ampio porticato con vetrate, ideale per accogliere gli ospiti nella bella stagione, una stanza bricolage, un doppio garage ed un posto auto coperto. Il giardino è recintato e curatissimo!
Le due unità hanno riscaldamento a pavimento, impianto fotovoltaico e climatizzatore: le finiture sono curate nei dettagli e gli spazi generosi rendono questo immobile una vera occasione!
Ulteriori info presso ns ufficio.
Dettagli
-
ID proprietà INC314
-
Prezzo €650.000
-
Dimensione della proprietà 450 Mq
-
Camere da letto 6
-
Locali 11
-
Bagni 6
-
Parcheggi Garage doppio
-
Anno di costruzione 2006
-
Tipo di proprietà Rustico
-
Stato della proprietà Vendita
-
Arredamento no
-
Ascensore no
-
Condizioni Ristrutturato
-
Cucina Abitabile
-
Giardino Privato
-
Riscaldamento Autonomo

















