Vivere Piazza San Giacomo: attico esclusivo con altana
- €1.800/mese
Vivere Piazza San Giacomo: attico esclusivo con altana
- €1.800/mese
Panoramica
- 1
- 2
- 110 Mq
- 2002
- Nessuno
Descrizione
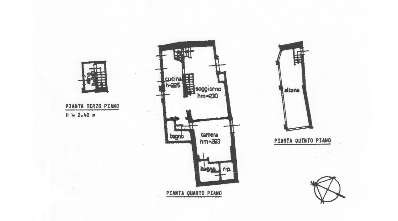
In prestigioso palazzo d’epoca affacciato su Piazza San Giacomo, proponiamo un esclusivo attico con altana e affacci di rara bellezza. L’abitazione, posta al quarto piano, luminosa e di ampia metratura, offre una raffinata zona living doppia, una cucina abitabile con zona pranzo dedicata, una spaziosa camera matrimoniale con bagno “en suite” e un bagno di servizio.
Una scala interna conduce alla terrazza coperta con altana, dalla quale si gode di una splendida vista sulla piazza, sul Castello e sui tetti della città. Finiture di pregio, aria condizionata e riscaldamento autonomo completano la proprietà.
Possibilità di posto auto nelle immediate vicinanze.
Dettagli
-
ID proprietà INP295b
-
Prezzo €1.800/mese
-
Dimensione della proprietà 110 Mq
-
Camera da letto 1
-
Locali 2
-
Bagni 2
-
Parcheggi Nessuno
-
Anno di costruzione 2002
-
Tipo di proprietà Attico / Mansarda
-
Stato della proprietà Affitto
-
Arredamento si
-
Ascensore si
-
Condizioni Ristrutturato
-
Cucina Abitabile
-
Giardino No
-
Riscaldamento Autonomo















