Ristorante in Viale Tricesimo
- €2.500/mese
Ristorante in Viale Tricesimo
- €2.500/mese
Panoramica
- 210 Mq
- Posto auto scoperto
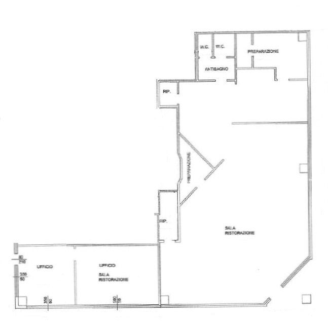
Descrizione
Viale Tricesimo, all’altezza del Terminal Nord: recente porzione di fabbricato al piano terra, attrezzato a ristorante con ampio parcheggio disponibile per clienti. L’offerta comprende la proprietà dell’immobile oltre a tutta l’attrezzazzatura ed il mobilio presenti all’interno dei locali.
Il ristorante si compone di un’ampia zona adibita a tavoli e sedie per circa 70/80 coperti, con il bancone di somministrazione delle bevande a vista e zona cucina adibita a self-service: completano la proprietà una sala privè con la possibilità di ricavare altri 20 coperti e una seconda cucina attrezzata per la preparazione degli alimenti, doppio bagno e doppio ripostiglio.
Immobile molto luminoso, sito in una zona strategica della città e in prossimità di importanti attività commerciali, si presenta in ottime condizioni e pronto per un utilizzo immediato.
Riscaldamento e condizionamento autonomi in pompa di calore, impianto di antifurto, impianto di videosorveglianza.
Dettagli
-
ID proprietà INGB357b
-
Prezzo €2.500/mese
-
Dimensione della proprietà 210 Mq
-
Locale 0
-
Parcheggi Posto auto scoperto
-
Tipo di proprietà Azienda commerciale
-
Stato della proprietà Affitto
-
Arredamento no
-
Ascensore no
-
Giardino No
-
Riscaldamento Autonomo














